Ja estan en marxa les obres de reforma del local on s'ubicarà la futura Seu Central del Col·legi. Iniciem així una nova etapa d'aquest històric i il·lusionant projecte, en la qual veurem com va prenent forma el nou espai, ubicat al carrer Llança, 37-39, al districte de l'Eixample de Barcelona, i a tocar de l'Estació de Sants.
En els darrers mesos, desde la compra del local, que es va aprovar en l'Assemblea General Extraordinària del 29 de setembre de 2022, la Junta de Govern del Col·legi ha estat treballant intensament, amb l'estudi d'arquitectura NAO, escollit després d'un minuciós procés de selecció entre diversos estudis, en la definició i elaboració del projecte arquitectònic. Aquest estudi compta amb més de 10 anys d'experiència, 480 projectes gestionats i una filosofia basada en el treball personalitzat, compromís i anys d'experiència per oferir un servei actualitzat de qualitat i responsabilitat.
També, s'ha dut a terme una acurada recerca d'empreses constructores per materialitzar, amb totes les garanties, el projecte dissenyat. Després de valorar les diferents ofertes presentades, es va escollir per realitzar l'obra a Maheco, constructora des de 1987 i amb una àmplia trajectòria en rehabilitació i construcció de tota mena de projectes.
El Col·legi ha comptat amb el suport i assessorament de l'arquitecte Oriol Ribes, que ha ajudat en el procés de selecció de l'estudi d'arquitectura i l'empresa constructora i que ens acompanyarà fins al final del projecte. Arquitecte amb 15 anys d'experència, Ribes ha treballat tant pel sector públic com pel sector privat, desenvolupant projectes d'escales i tipologies diverses, especialment centrats en els equipaments docents, administratius i esportius, així com en la realització d'habitatges.
Inici dels treballs de reforma
Aquesta setmana, amb la realització de les tasques inicials de l'obra, ja s'han començat a veure els primers canvis en el nou local. Per tal de fer el seguiment d'aquest inici, el 2 d'agost es va dur a terme la primera visita d'obres, amb la participació de la degana del Col·legi, Conchita Peña; la gerent del TSCAT, Montse Grau; l'arquitecta d'Estudi Nao, Anna Fumadó; l'arquitecta tècnica de a3 Arquitectura Tècnica; Meritxell Bosch; i la cap d’Obres de Maheco, Rosa Castillo.

Com serà la nova Seu Central del Col·legi?
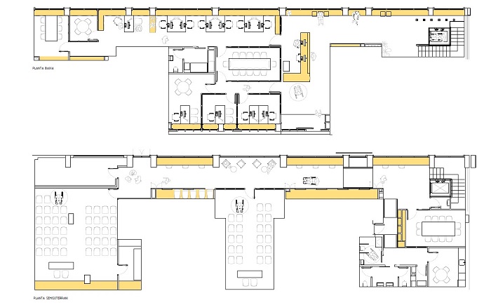
El nou espai, d'uns 550 m2 repartits en dues plantes, s'ha dissenyat pensant en les necessitats actuals i futures d'un Col·legi, com el nostre, que no deixa de créixer any rere any, i per oferir unes instal·lacions àmplies i de qualitat per la nostra col·legiatura, així com per a les diferents seccions col·legials que tenim com les Comissions, Grups de Treball, l'Assessoria de Publicacions no Periòdiques, el Seminari Permanent d'Història i l'Equip 65.
El projecte contempla en la planta baixa, a peu de carrer, una zona de recepció, la zona de treball i despatxos per al personal del Col·legi, així com dues sales de reunions per a 12 i 6 persones, respectivament. En la planta soterrari, s'intal·laran dues aules per a les formacions i els actes del Col·legi (de 24 i 44 persones cadascuna), espais oberts d'estada i de treball per a les col·legiades, una sala de reunions (de 12 persones), i la zona de serveis, office i arxiu.

Una Seu més eficient i sostenible
Seguint els criteris d'austeritat i bon ús de l'energia, s'han previst diferents mesures per reduir el consum energètic de la nova Seu.
La facilitat per dur a terme una ventilació creuada natural, farà que durant algunes èpoques de l’any no sigui necessària la utilització dels sistemes actius de calefacció o refrigeració. Per la resta de temps, s’ha previst un sistema de climatització per volum de refrigerant variable amb recuperació de calor, totalment zonificat per actuar només on sigui necessari i que es complementa amb recuperadors de calor entàlpics que garantiran una elevada qualitat de l’aire interior amb la mínima despesa energètica possible.
També hi haurà una millora de l’aïllament tèrmic en les noves fusteries i amb un aprofitament òptim del sol i, gràcies a les grans vidrieres que hi ha a les dues plantes, el nou espai es beneficiarà de molta llum natural.
Per tal de reduir el so aeri i garantir un confort acústic, s’ha previst instal·lar un cel ras fonoabsorvent a la zona d’oficines, sales de reunions i espais per a col·legiades, així com envans amb aïllament acústic.
Finalment, s'ha optat perquè la façana principal i el mobiliari fixe siguin de fusta, el material de construcció més sostenible.
Es preveu que les obres estiguin finalitzades al llarg del primer trimestre de 2024. Us anirem informant de l'evolució del projecte a través de la web i les nostres xarxes socials.